REF. 2212/111 - HERMOSO DEPARTAMENTO CENTRICO EN CDMX !!! con Cajon y Bodega
Descripción
Excelente oportunidad de departamento. Ya sea que busques tu primer hogar, un espacio práctico para vivir en pareja o una inversión con alta demanda en rentas de corto y largo plazo, aquí encontrarás funcionalidad, diseño y ubicación en un solo lugar.
Vivir en los límites de la Colonia Centro- Roma Norte es formar parte del pulso que mueve a la CDMX. Entre museos, teatros, cafés, arquitectura icónica y nuevas propuestas urbanas, esta zona te conecta con el pasado, el presente y lo que viene.
Su energía combina lo tradicional con lo contemporáneo, atrayendo a quienes buscan inspiración, conexión y cercanía con lo lo mejor de la ciudad. Aquí, el Centro no es solo una ubicación. Es una forma de vivir.
Aquí moverte a pie o en bicicleta es simple y natural. Rodeado de historia, cultura y vida urbana, vivir en esta zona es formar parte activa de una ciudad vibrante, conectada y en constante movimiento.
El diseño arquitectónico corresponde a las necesidades del estilo de vida actual: espacios funcionales, estéticos y bien pensados.
Cada detalle ha sido cuidadosamente proyectado para maximizar la entrada de luz natural, optimizar las vistas urbanas y ofrecer una distribución eficiente que garantice comodidad y privacidad.
Ubicado a unas cuadras del comedor Lucerna, del Centro Cultural Telmex, de la Arena México, cuenta con parques muy cercanos como también mercados y medios de transportes como Metro y Metrobus.
Esta rodeado de excelentes vialidades como:
- Av Chapultepec
- Paseo de la Reforma
- Av Insurgentes
- Eje Central
El departamento cuenta con lo siguiente:
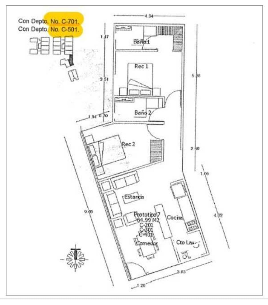
-Sala Comedor
- Cocineta Integral
- Área de Lavado
- 2 Recamas
- 2 Baños completos (uno dentro de la Recamara Principal)
- 2 Balcones (en Sala y Recamara Principal)
- Bodega
- Cajón de estacionamiento
- Gimnasio
- Coworking
- Lobby
Contacto
- Oficina: 2212 - Alfa Inmobiliaria House Infinity
- Av. Ejército Nacional Mexicano 425, 5to Piso, Col. Granada, Miguel Hidalgo, Ciudad de México
- Teléfonos: 5592160909
- Whatsapp: 5523303434
- Email: [email protected]
- Web: www.alfahouseinfinity.com
Información
- Precio de venta: 4,450,000 MXN
- Mantenimiento: 2,000 MXN
- Piso : 6
- Plantas edificio : 7
- Año de construcción : 2019
- M2 construidos : 65 m2
- Á total útil : 65 m2
- M2 terraza : 7 m2
- Habitaciones : 2
- Baños : 2
- Estacionamientos : 1
- Ascensores : 1
- Estado de conservación : buen estado
- Interior/exterior : exterior
- Amueblado : sin amueblar
- Cocina : cocina integral
- Tendedero : cubierto
- Equipamiento : trastero/bodega, puerta de seguridad, gimnasio, vigilancia 24h, Condominio privado.
- Varios : admite mascotas.
- Puerta : madera barnizada.
- Ventanas : aluminio.
- Suelos : porcelanato.
- Instalaciones : balcón, cuarto multipropósito.
CALCULAR HIPOTECA
Comparte esta Propiedad: